New Construction

90 Long View Lane, Chatham NJ

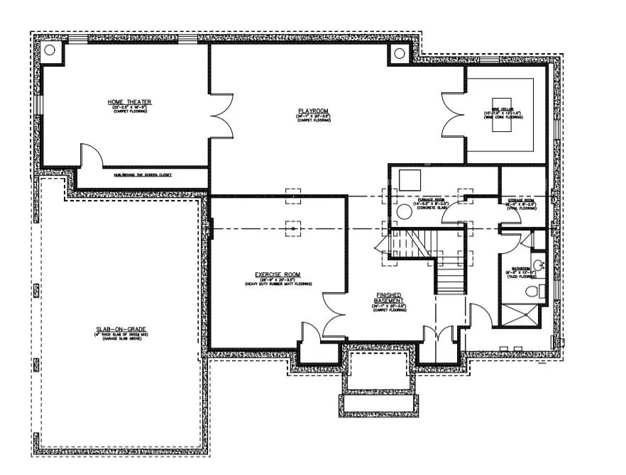
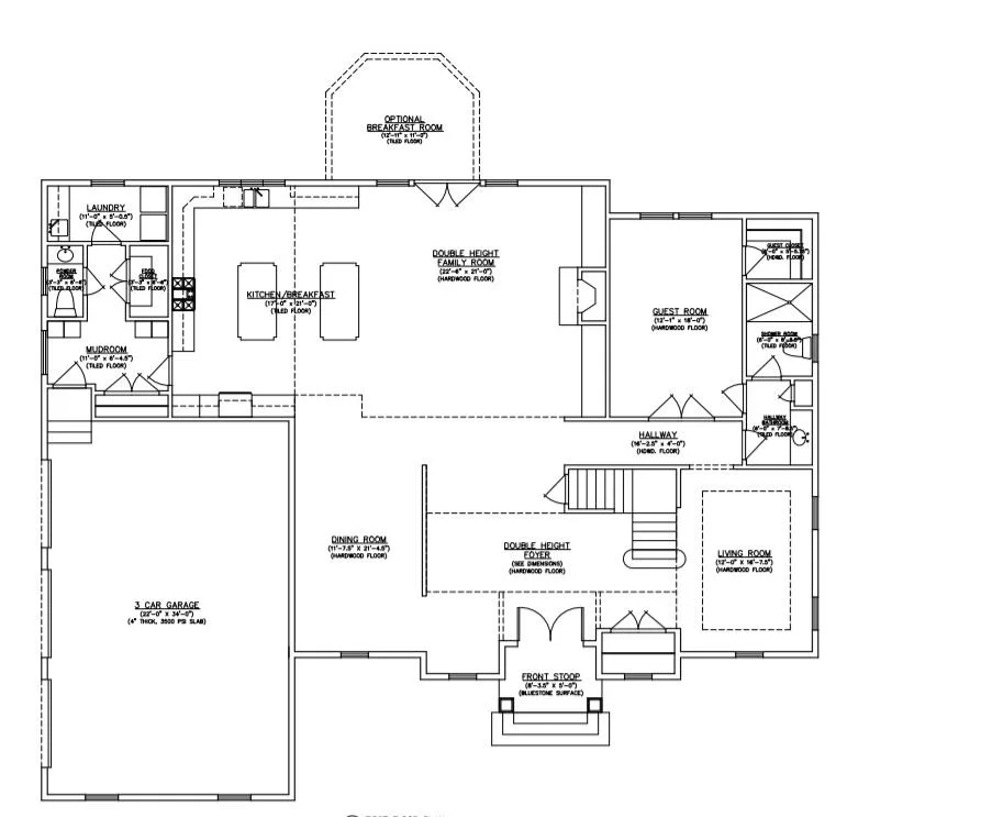
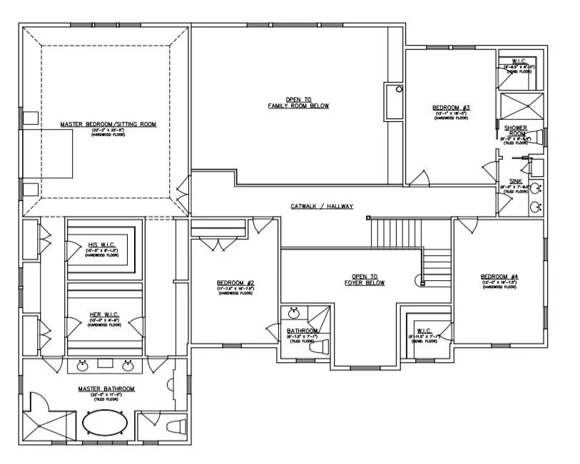
This Farmhouse Colonial offers 3 levels of living space for the total of 15 rooms, 5 bedrooms with 6 1/2 baths and sits on a cul-de-sac with views out the back of this home. The 1st floor of this home offers a Living room, Dining room, Library/Den, Family room w/ a Gas Fireplace, Guest room w/ a full bath, Kitchen w/42” cabinets, built-in hutch w/wine Refrigerator, Quartz counter tops, Center Island, Thermador Refrigerator/Freezer, Thermador Duel Fuel double and 48” - 6 burner stove, Bosch 800 series Dishwasher, Viking Microwave, 4” Solid Oak Flooring throughout, 2nd floor a Master Bedroom w/ a Gas Fireplace, Sitting Room, 2 walk-in closets, Full Bath, 3 other Bedrooms and 3 Full Baths, a Bonus Room off of Bedroom #4, A Finished Basement w/ a Full Bath and a Euro Style Wine Cellar.

Contact Us